匠心 服務 創新 品質


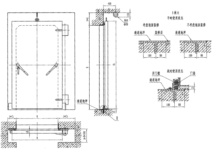
此類門的特點是平時不設門檻,地面平整,便于人員或車輛通行;戰時快速設置門檻,以滿足防護、密閉要求。

| 型號 | 門孔寬B | 門孔高H | 門扇厚δ | B1 | H1 | C1 | C2 | D |
|---|---|---|---|---|---|---|---|---|
| GHFM0716(6) | 700 | 1600 | 112 | 900 | 1675 | 300 | 500 | 400 |
| GHFM0820(6) | 800 | 2000 | 113 | 1000 | 2075 | 200 | 400 | 300 |
| GHFM0920(6) | 900 | 2000 | 113 | 1100 | 2075 | 200 | 400 | 300 |
| GHFM1020(6) | 1000 | 2000 | 113 | 1200 | 2075 | 200 | 400 | 300 |
| GHFM1220(6) | 1200 | 2000 | 132 | 1400 | 2075 | 200 | 400 | 300 |
| GHFM1320(6) | 1300 | 2000 | 133 | 1700 | 2075 | 200 | 400 | 300 |
| GHFM1520(6) | 1500 | 2000 | 134 | 1700 | 2075 | 200 | 400 | 300 |
| GHFM1525(6) | 1500 | 2500 | 138 | 1700 | 2575 | 200 | 400 | 300 |
| GHFM1820(6) | 1800 | 2000 | 172 | 2575 | 2075 | 200 | 400 | 300 |
| GHFM1821(6) | 1800 | 2100 | 172 | 2000 | 2175 | 200 | 400 | 300 |
| GHFM2020(6) | 2000 | 2000 | 176 | 2200 | 2075 | 200 | 400 | 300 |
| GHFM2028(6) | 2000 | 2800 | 156 | 2200 | 2875 | 300 | 500 | 300 |
| GHFM0820(6) | 800 | 2000 | 116 | 1000 | 2075 | 200 | 400 | 300 |
| GHFM0920(6) | 900 | 2000 | 116 | 1100 | 2075 | 200 | 400 | 300 |
| GHFM1020(6) | 1000 | 2000 | 116 | 1200 | 2075 | 200 | 400 | 300 |
| GHFM1220(6) | 1200 | 2000 | 136 | 1400 | 2075 | 200 | 400 | 300 |
| GHFM1222(6) | 1200 | 2200 | 146 | 1400 | 2275 | 300 | 500 | 400 |
| GHFM1320(6) | 1300 | 2000 | 136 | 1500 | 2075 | 200 | 400 | 300 |
| GHFM1520(6) | 1500 | 2000 | 138 | 1700 | 2075 | 200 | 400 | 300 |
| GHFM1523(6) | 1500 | 2300 | 146 | 1700 | 2375 | 300 | 500 | 400 |
| GHFM1525(6) | 1500 | 2500 | 146 | 1700 | 2575 | 300 | 500 | 400 |
| GHFM2020(6) | 2000 | 2000 | 196 | 2200 | 2075 | 200 | 400 | 300 |
| GHFM2022(6) | 2000 | 2200 | 180 | 2200 | 2275 | 300 | 600 | 400 |