
密閉觀察窗是具有一定密閉性能的人員觀察設備,一般安裝在工程設備房間密閉隔墻的觀察孔上,既能密閉,又可透視。其防電磁脈沖能力為II級。

| 型號 |
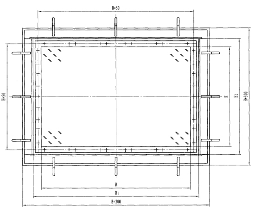
透明窗孔口尺寸BxH |
土建預留窗口尺寸B1xH1 |
| MGC0804 |
800×400 |
950×550 |
| MGC1008 |
1000×800 |
1150×950 |
| MGC1208 |
1200×800 |
1350×950 |
| MGC1209 |
1200×900 |
1350×1050 |
| MGC1212 |
1200×1200 |
1350×1350 |
| MGC1215 |
1200×1500 |
1350×1650 |
| MGC2112 |
2100×1200 |
2250×1350 |